门禁系统有哪些?

yyqadmin 2025-03-12 11:33 实用技术

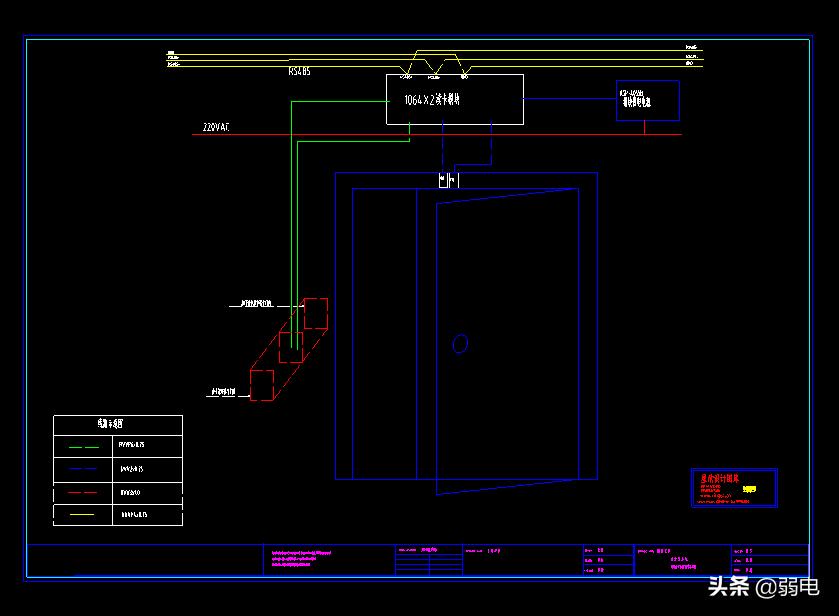
门禁系统图汇合,关于门标系统这块也是弱电中很重要的一部分,除了门禁方案就是系统图纸,也是很多弱电朋友多次问到过的,门禁的图纸设计一般也不难,主要是施工图与安装图比较多,那么本期我们更新了这份门禁系统图,方便弱电人在做门禁项目的时候可以直接使用参考,图纸图比较全,共有12个图,从不同的角度来详解门禁系统图的施工。

 

 

门禁系统有哪些?

门禁系统有哪些?

门禁系统有哪些?

门禁系统有哪些?

门禁系统有哪些?

门禁系统有哪些?

门禁系统有哪些?

 


 

 

 

 

标签: 门禁系统有哪些

上一篇:大华报警主机客户端操作配置步骤
下一篇:视频监控、门禁对讲、防盗报警是民用安防市场的三大支柱

猜你喜欢

手机扫一扫添加微信

13594006930