一份楼宇对讲系统图,接线与分机安装图

yyqadmin 2025-03-12 15:48 实用技术

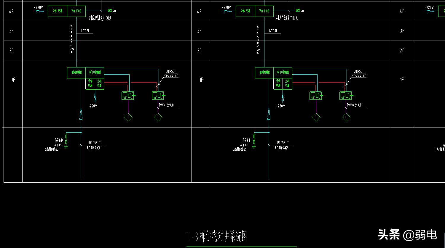
一份楼宇对讲系统图,也是大家常用的,楼宇对讲的项目在弱电中是非常常见的,这份楼宇对讲系统图包括6个部分:
1、楼宇对讲走线图
2、楼宇对讲接线图
3、楼宇对讲安装
4、楼宇对讲整体系统图
5、楼栋之间对讲系统图
6、楼宇对讲分机系统图

是非常全的,是学习楼宇对讲不错的资料。

 

 

一份楼宇对讲系统图,接线与分机安装图

 

 

一份楼宇对讲系统图,接线与分机安装图

一份楼宇对讲系统图,接线与分机安装图

一份楼宇对讲系统图,接线与分机安装图

一份楼宇对讲系统图,接线与分机安装图

一份楼宇对讲系统图,接线与分机安装图

一份楼宇对讲系统图,接线与分机安装图

 

 

 

 

 

标签: 楼宇对讲系统图 楼宇对讲分机

上一篇:惠普2621如何连接手机打印
下一篇:什么是6线制电子围栏,6线制电子围栏图纸

猜你喜欢

手机扫一扫添加微信

13594006930